Vindplank ska läa Sadelexpressen i Åre
I Åre planerar Skistar att bygga ett vindplank som ska fungera som ska läa liften Sadelexpressens bergsstation, som ofta är utsatt för rejäla brisar. En del av oss såg nog ett gigantisk plank i stil med den kinesiska muren framför sig när nyheten kom. Konstruktion blir inte riktigt så pampig, tänk mer trädgårdsstaket på anabola.
Det var längesedan Åres skidsystem lanserade någon storartad nyhet som en lift, pist, ett nytt skidområde eller dylikt. 2013 byggde Åre tre nya sittliftar samma år, vilket var rena hat tricket.
Sedan dess har Skistar valt att plocka ned liftar, även om kabinbanan verkar ha minst nio liv. I januari 2011 gick det flera tusen kilo tunga vändhjulet på Tusenmetersliften bums ned i marken, framför chockade skidåkare men ingen kom till skada. Den gamla liften från 1976 lagades men 2017 brast vajern på liften, ingen skadad då heller turligt nog, och den monterades därefter ned och har inte ersatts.
När vi på Freeride nyligen publicerade fjällvärldens nyheter så uteblev återigen succén. Åres nyheter bestod i ärlighetens namn av halvlama satsningar så som utökad parkering och padelbanor. Men det var en nyhet som efter en stunds betänketid väckte vårt intresse. Skistar gick nämligen ut med att ett vindskydd ska installeras på Sadelberget för att ”leda” om vinden och därmed säkra driften av Sadelexpressen som ett led i företagets strategi att vädersäkra Åre.
Detta gör en nyfiken. När nyheten kom såg vi ett enormt plank ringla sig likt kinesiska muren från dalstationen av Sadelexpressen hela vägen upp till bergstationen, hur ska detta ens vara möjligt?
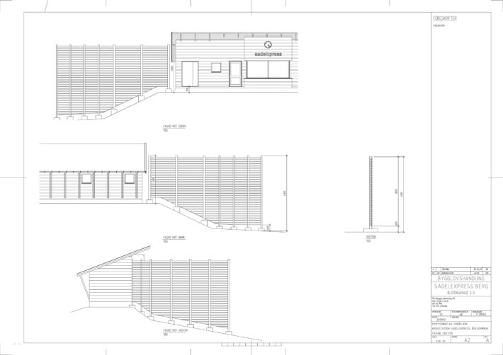
Spännande. Dessvärre satte sig antiklimaxet i halsen som en friterad räka när det det visade sig vara mer av ett trädgårdsstaket på steroider som ska byggas. Men när känslorna lugnat sig kom tankarna: kan denna 13 meter långa och 6 meter höga bräd- och stålkonstruktion säkra skidåkningen även vid starkare vindbyar så är det ju de facto ett plus för skidåkarna i Åre.
Vi har hört oss för med Sebastian Thomasson, Destinationschef Skistar Åre, kring vad för slags vindskydd som egentligen håller på att byggas vid Sadelexpressen.
Hej Sebastian! Ni ska satsa på ett vindplank för att skydda liften Sadelexpressen i Åre: Vad är detta för påfund egentligen?
– Vi lider ju en del av starka vindar som påverkar framförallt våra stolbanor under vissa dagar under en säsong. Oftast blåser det västliga vindar och just Sadelexpressen påverkas när den vinden går in i bergstationen, med denna idé tror vi att vi kommer att kunna styra bort en del av vinden som går in i bergstationen.
När bygger ni vindplanket?
– Vi håller på just nu med att gjuta fundamenten och kommer att blir klara till säsongsöppning.
Hur högt och långt blir planket?
– Det kommer att dockas på lifthuset och blir 13 meter långt och 6 meter högt.
Vad består planket av för material?
– Det är en stålkonstruktion i själva ramen och sedan är det trä till själva ”planket”.
Är det någon särskild del eller sektion av just sittliften Sadelexpressen som är utsatt för vind?
– Det är precis när stolarna går in i bergstationen som vi vill skydda från vind.
Kommer planket att förändra skidåkningen i området på något vis, pister eller offpist-terräng?
– Nej, det kommer inte förändra skidåkningen något.
Hur säkra är ni på att denna lösningen är effektivt?
– Vi kan aldrig vara 100% säkra men vi har mätt vinden på lite olika punkter genom åren och just hittat denna del som mest utsatt så vi hoppas att det kan få en positiv effekt.
Om du tänker framåt: Är det fler liftar i just Åre som kan få liknande vindplank?
– Om det visar sig att detta är en effektiv lösning så kan vi göra detta på fler liftar, det är dock inte alla bergstationer som har en terräng där detta kan passa in.
Sadelexpressen Åre: 1,6 km lång och 302 fallhöjdsmeter
Sadelexpressen är en sexstolslift som tar skidåkare från Högåsliftens dalstation i Björnen till toppen på Sadelliften med en kapacitet på 2 800 personer i timmen. Längd 1 600 meter, fallhöjd 302 meter. När Sadelexpressen och Fjällgårdsexpressen byggdes 2013 blev dessa två vitala delar i en bättre länk mellan familjeområdet Björnen och centrala Åres system. Vi som åkt skidor mellan Åre och Björnen före 2013 vet hur det var före de nya sittliftarna… inte särskilt smidigt.
2013 slog Åre på stora trumman med 3 nya sittliftar
Sadelexpressen invigdes för övrigt för snart åtta år sedan i december 2013 och samtidigt invigdes också Fjällgårdsexpressen. Samma vinter kom också Tegefjälls första sittlift, den fast fyrstolaren Tegeliften som ersatte Tegefjälls äldsta ankarliften som hette just ”Tegefjällsliften” från 1986.
Inför VM i Åre 2019 fick gondolen nya röda korgar och de gamla vita äggen från 1989 fasades ut.
Men om vi backar bandet nära två decennier hittar vi ännu fler stora nyheter. När det 2002 blev klart att Åre skulle få alpina VM i Åre 2007 rustade man samma år rejält med bygget av både VM6:an och Hummelliften. VM8:an stod klar i december 2006 i lagom tid för de alpina VM-tävlingarna. I år bygger alltså Åres ägare Skistar planket vid Sadelexpressen, något som givetvis är bra om det säkrar driften. Samtidigt ställer sig nog de flesta svenska skidåkare som älskar Åre sig frågan: När får vi se någon ny lift och nya backar i Sveriges största skidort?
Om vi får spå lite i kaffesump, kombinera med magskänsla och tidigare uttalande här på Freeride.se från Sebastian Thomasson, Destinationschef Skistar Åre (”Kabinbanan kommer att rivas utifrån att det är gammal lift med väldigt begränsad kapacitet. Det vi jobbar med nu är att titta på vilka möjligheter det finns med att ersätta kabinbanans funktion- att ta gäster sommar som vinter från byn upp på skutan så effektivt som möjligt.” ) så kommer det måhända presenteras någon form av ny lift när kabinbanan de facto är mogen för att rivas.






