Aktivitetshall i Åre ett steg närmare verklighet
Aktivitetshallen i Åre som kandiderar på att bli Europas största är ett steg närmare verklighet.
Ekonomiskt stöd på 12,5 miljoner är säkrat från regionen och kommunen har tagit beslut om att sälja marken till företaget som skall driva hallen – Allaktivitetshallen i Åre AB.
Vi har tidigare skrivit om aktivitetshallen i Åre som skall ligga på Åre strand precis över bron från Coop på väg mot Holiday Club.
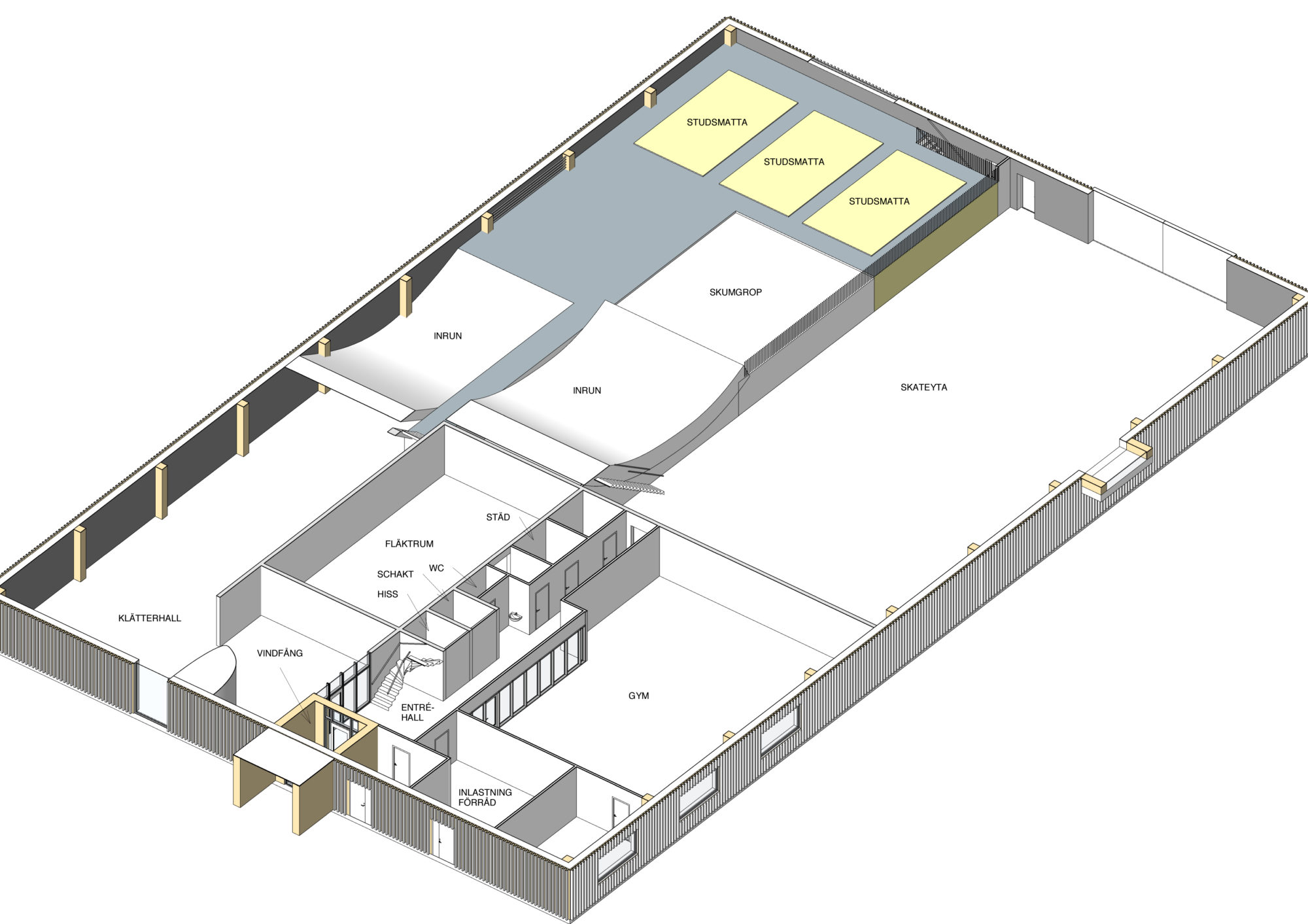
Aktivitetshallen är av samma snitt som återfinns i bl.a. Laax i Schweiz och Woodward vid Coper Mountain, USA. I Åres hall skall det rymmas bl.a. skateboardpark, klätterväg, studsmattor och skumgummigrop med hoppramp för skidor och snowboard. Enligt detaljplanen får bygget vara sju meter högt och 1.800 kvadratmeter.
En förutsättning för att projektet ska bli verklighet är att bolaget äger marken själva. Något som kommunen nu har gått med på genom att sälja marken för 3 miljoner kronor. Allaktivitetshallen i Åre AB är beviljade ett avskrivningslån som motsvarar markens värde.
”Avskrivningslånet ska användas som betalning av köpeskillingen. Avbetalningen ska ske under 20 år. Föreslagen motprestation från bolaget är att lämna 50% rabatt på inträdet för kommuninvånare samt fritt inträde vissa tider för skidgymnasiets elever vid träning”
Satsningen på en aktivitetshall i Åre är nu ytterligare ett steg närmare verklighet och ses som ett bra sätt att utöka ”året runt-aktiviteterna” i Åre kommun.






